RCH Property Management

Location, Location, Location

Crinny West, Castleisland: The Gateway To The Kingdom

Contact Now

About This Property

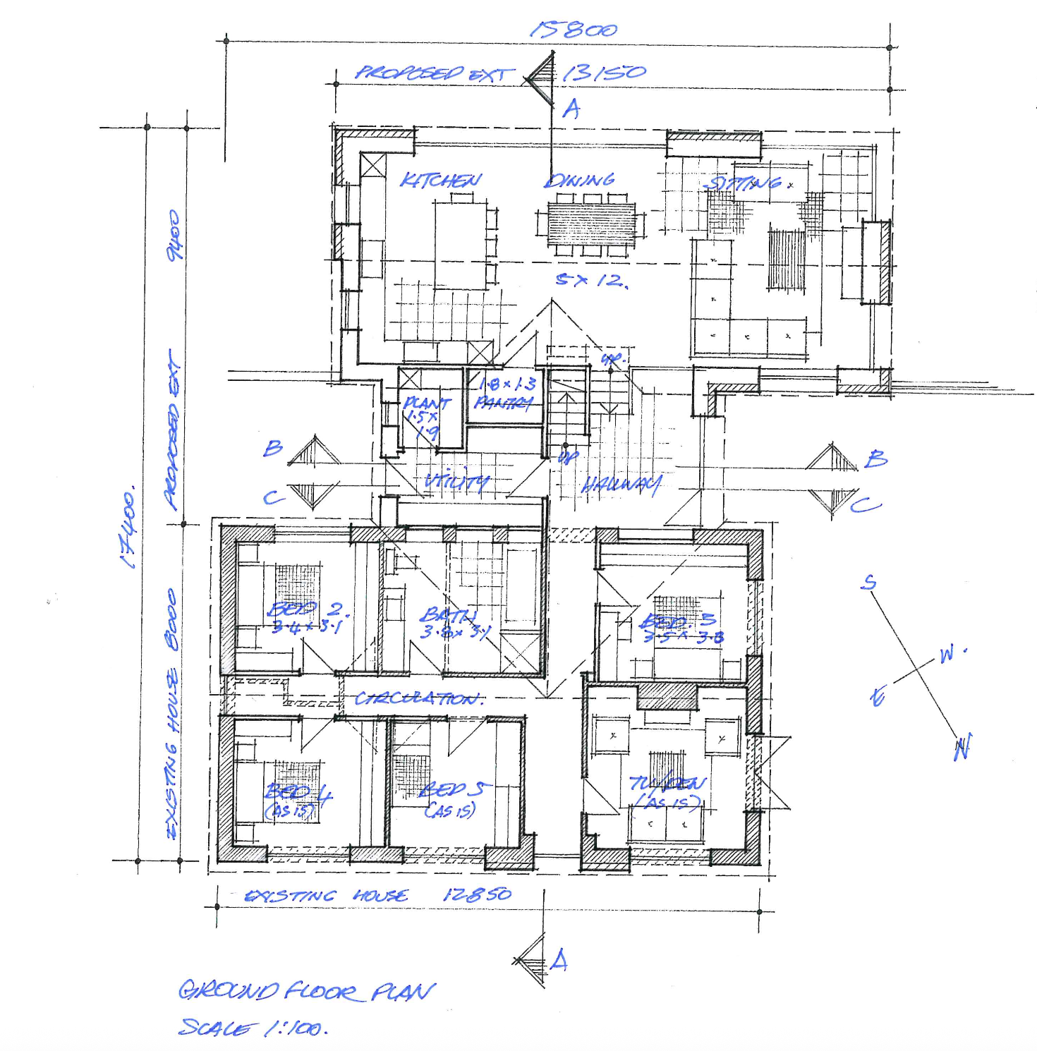
This charming 3-bedroom bungalow, currently offering 88 square meters of comfortable living space, comes with Full Planning Permission to extend the property to an impressive 237 square meters. This allows for significant expansion, including additional bedrooms, living areas, and modern amenities tailored to your lifestyle.

Situated on an elevated site, the property boasts spectacular panoramic views of the majestic Killarney Mountains, providing a stunning natural backdrop and serene surroundings.

Located just a short drive from Castleisland and within easy reach of Tralee and Kerry Airport, this home offers the perfect blend of rural tranquility and convenient access to local amenities. With the potential to customize and expand, this is an exceptional opportunity for those seeking to create a spacious, modern family home in a picturesque setting.

“You can change everything about a house — its layout, finishes, and size — but you can’t change its location.”

Planning Designs

Site Layout Plan
Ground Floor Plan
Front Elevation
3D Render Perspective

Stunning Elevated Views of the Killarney Mountains

Experience tranquility and breathtaking scenery from your future home.

Site Overview

This impressive site extends across approximately 2 acres of elevated ground, offering a rare combination of privacy, space, and breathtaking natural beauty.

Its elevated position provides sweeping panoramic views over Castleisland, Carrauntoohil, and the iconic MacGillycuddy Reeks — perfect for those seeking a scenic and tranquil lifestyle.

Whether you’re considering expansion, gardening, or simply enjoying the peace and quiet, this site provides an ideal foundation to create a dream countryside home.

Site Aerial View

Description

RCH Property Management bring to the market this 3-bedroom, detached bungalow residence on 2 acres, which enjoys elevated and spectacular views of Castleisland, Carrauntoohil, the Reeks and the surrounding hinterland.

Located just off the N21 (Limerick/Tralee primary route), it is approximately 7kms from the market town of Castleisland. Tralee, Killarney and Kerry airport are a short drive away.

The property is in need of renovation and modernisation and has the benefit of a detached garage, mains water and a septic tank onsite.

There is full planning permission for expansion of the current house and potential for other outbuildings to be built on the large site (subject to planning). Suitable also for market gardening and horticulture.

Accommodation

  • Entrance Hallway: 3.73 x 1.4, Lino floor, Light fittings
  • Living Room: 3.63 x 3.31, Marble fire surround, carpet, Light fittings
  • Dining Room: 4.7 x 3.3, Stanley range, lino floor, light fittings
  • Kitchen: 3.13 x 2.2, Lino floor, Fitted units and sink
  • Bathroom: 3.11 x 1.5, Tiled floor to ceiling, W/C, W.H.B, bath, light fittings
  • Bedroom 1: 3.3 x 3.47, Carpet, light fittings, fitted wardrobes
  • Bedroom 2: 3.72 x 3.32, Carpet, light fittings
  • Bedroom 3: 3.12 x 3.02, Carpet, light fittings

Features

  • ✓ Large Elevated 2 Acre Site
  • ✓ Mains Water
  • ✓ Front Boundary Wall
  • ✓ Gravel & Chip Driveway
  • ✓ Garage
  • ✓ OFCH
  • ✓ Septic Tank

BER Details

  • BER: E2
  • BER No.: 113895007
  • Energy Performance: 352.75 kWh/m²/yr

Property Price

€275,000

Negotiable | Price subject to contract
Contact Now

Breathtaking Sunsets

Experience stunning sunsets over The Kingdom — all from the comfort of your own sofa.

Full Planning Permission Granted

Location: Castleisland, Co. Kerry

The property has been granted Full Planning Permission for a substantial extension, enhancing its living space and functionality. This development aligns with local planning objectives and offers significant opportunities for future owners.

Proposed Development Includes:
  • Additional Living Space: A split-level storey-and-a-half style extension to the rear of the existing dwelling house, with elevational changes to the current structure.
  • New Bedrooms and Bathrooms: Addition of extra bedrooms and bathrooms to accommodate larger families or guests.
  • Modernized Kitchen and Dining Areas: Upgrading of kitchen and dining spaces to meet contemporary standards and preferences.
  • Percolation Unit: Installation of a new percolation unit to support an upgraded wastewater treatment system in line with planning requirements.
  • Landscaping and Site Works: Improvements to the surrounding landscape and site infrastructure to complement the new development.
Planning Reference Details:
Key Considerations:
  • Compliance with Local Development Plan: The proposed development complies with the objectives set out in the Castleisland Local Area Plan, ensuring consistency with the area's character and infrastructure.
  • Sustainable Design: The extension incorporates sustainable building practices and materials, aiming for energy efficiency and minimal environmental impact.
  • Community Impact: The development is expected to positively impact the local community by providing modernized housing options and potentially creating employment opportunities during construction.

Vacant Property Grant

This property has been vacant since 2017, making it eligible for the Vacant Property Grant. This grant is designed to support owners in renovating and bringing long-term empty homes back into use.

The grant offers financial assistance towards repair and refurbishment costs, encouraging sustainable reuse of vacant properties and contributing to local housing availability.

Taking advantage of this grant can significantly offset renovation expenses, making this a valuable opportunity for investors or homeowners looking to restore and enhance the property.

For more information on eligibility and application procedures, please contact Kerry County Council or visit their official website.

Local Attractions

Crag Caves
Crag Caves

Explore stunning limestone caves with guided tours showcasing unique rock formations and underground rivers.

Killarney National Park
Killarney National Park

Ireland’s first national park offers breathtaking lakes, mountains, and native woodland with hiking, cycling, and wildlife spotting.

Blennerville Windmill
Blennerville Windmill

A restored 19th-century windmill showcasing traditional milling methods and Irish rural heritage.

Aquadome
Aquadome

Family-friendly water park and leisure centre offering pools, slides, and wellness facilities for all ages.

Kerry Museum
Kerry Museum

Discover Kerry’s rich history, archaeology, and culture through engaging exhibits and artefacts.

Fenit
Fenit

A charming coastal village featuring a marina, beaches, and great seafood restaurants.

Local Amenities - Castleisland, Co. Kerry

Castleisland River Walk
Castleisland River Walk

Enjoy a relaxing riverside walk with natural beauty and wildlife just steps from town.

Kerry Airport
Kerry Airport

Located just 10 minutes away, offering national and international flights.

Farranfore Railway Station
Farranfore Railway Station

A convenient train link to Tralee, Killarney, and Dublin from nearby Farranfore.

Ballyseede Woods
Ballyseede Woods

A serene forest trail near Tralee, perfect for peaceful walks and picnics.

Castleisland Pitch and Putt
Castleisland Pitch & Putt

A fun, family-friendly course set in the heart of the town for casual golf lovers.

Castleisland Town Centre
Castleisland Town Centre

Home to local shops, bakeries, cafés, and pubs with a welcoming village atmosphere.

Nearby Beaches

Banna Strand
Banna Strand

A Blue Flag beach just north of Tralee, Banna offers golden sands, great swimming, and scenic walks.

Ballybunion Beach
Ballybunion Beach

Famous for its surf and sea cliffs, Ballybunion boasts a mix of sandy beaches and dramatic Atlantic views.

Fenit Beach
Fenit Beach

A sheltered beach near the marina, ideal for swimming, kayaking, and family outings with calm waters and nearby cafes.

Nearby Schools - Castleisland, Co. Kerry

Castleisland Community College

A well-established secondary school offering a broad curriculum and extracurricular activities.

Address: Caheranashel, Castleisland, Co. Kerry, V92 HN5Y

Phone: +353 66 812 3456

Email: info@castleislandcc.ie

St. Patrick’s National School

A local primary school with a strong community focus and excellent facilities.

Address: Abbeydorney Rd, Castleisland, Co. Kerry, V92 R6F9

Phone: +353 66 812 3457

Email: info@stpatricksns.ie

Scoil Mhuire Gan Smál

A primary school known for its supportive learning environment and dedicated staff.

Address: Tralee Rd, Castleisland, Co. Kerry, V92 A8X5

Phone: +353 66 812 3458

Email: info@scoilmhuire.ie

Events & Festivals - Castleisland, Co. Kerry

Castleisland Harvest Festival

A lively celebration every September with parades, traditional music, food markets, and family activities.

Castleisland Horse Fair

One of Ireland’s oldest horse fairs, held annually each October, featuring traditional horse trading and rural culture.

St. Patrick’s Day Parade

March 17th festivities with vibrant parades, traditional Irish music, and community celebrations.

Castleisland Agricultural Show

A yearly event showcasing local livestock, crafts, food, and farming innovations, usually in summer.

Patrick O'Keeffe Traditional Music Festival

Held every October, celebrating the legacy of renowned fiddle player Patrick O'Keeffe with live traditional Irish music sessions.

Rose of Tralee Festival

One of Ireland’s most famous festivals held annually in August, celebrating Irish culture, music, and heritage.

Official Website

Contact Us

Contact us and we'll get back to you within 24 hours.

RCH Property Management, Swords, Co. Dublin, Ireland

Crinny West, Castleisland, Co Kerry, Ireland

property@rchtech.ie

Please enter your name.